ЗАДАЧА:
Сделать эффектный ремонт в микро-апартаменте аренды и жизни.Апартамент в дореволюционном кирпичном здании старой фабрики 22,5м2 с высотой потолка 4м и стенами толщиной 90см.
СДЕЛАНО:
Цена без ремонта: 5,8 млн.р.
Ремонт: 1,84 млн. + проект
Цена возможной продажи: ~11-12 млн. (на 2021 год)
Цена возможной краткосрочной аренды 160т./мес (на 2021 год)
Цена возможной долгосрочной аренды ~ 65-80т. (на 2021 год)
![]() |
| Двухуровневый апартамент 22м2. Вид до ремонта |
- винтовая лестница!
- спальное место 160х200 с мягким изголовьем
- большая кухня (340см) с холодильником и посудомойкой
- ванная с душем, стиральной машинкой (с сушкой) и хранением вещей
- большая прихожая с хранением верхней одежды и обуви
- раскладной диван (доп. спальное место для гостей)
- обеденно-барный стол на 4 стула (используется как второе рабочее место)
- хранение лыж, сноубордов, велосипеда и другого спорт инвентаря
- отдельное рабочее место с креслом
- доп. хранение вещей (неглубокий стеллаж и комод)
Благодаря большому окну в пол и высокому потолку с антресолью не создается ощущения тесноты в апартаменте.
Именно она обеспечивает WOW-эффект в таком маленьком пространстве. Безумно хотела винтовую лестницу! Изучала стоимости, размеры, даже хотела купить чугунную на Алиэкспрессе. В итоге поняла, что нужна нестандартная, потому что очень мало места и важен каждый сантиметр высоты и ширины ступеней. Посмотрела как организовывают лестницу соседи. Узнала, что можно делать угол начала не под 90 градусов. До этого среди жителей был слух что винтовая лестница не влезает)
![]() |
| Двухуровневый апартамент 22м2. Вид на винтовую лестницу и прихожую |
![]() |
| Двухуровневый апартамент 22м2. Гостиная зона |
![]() |
| Двухуровневый апартамент 22м2. Вид сверху на дополнительное спальное место |
![]() |
| Двухуровневый апартамент 22м2. Экран для проектора |
![]() |
| Двухуровневый апартамент 22м2. Вид от входа на окно и кухню |
![]() |
| Двухуровневый апартамент 22м2. Прихожая |
![]() |
| Двухуровневый апартамент 22м2. Прихожая |
![]() |
| Двухуровневый апартамент 22м2. Спальное место |
![]() |
| Двухуровневый апартамент 22м2. Вид с антресоли вниз |
![]() |
| Двухуровневый апартамент 22м2. Спальное место с мягким изголовьем |
![]() |
| Двухуровневый апартамент 22м2. Вид от кровати на балкон |
![]() |
| Двухуровневый апартамент 22м2. Спальное место |
![]() |
| Ремонт двухуровневого апартамента 22м2. Рабочее место |
![]() |
| Ремонт двухуровневого апартамента 22м2. Ванная комната |
![]() |
| Ремонт двухуровневого апартамента 22м2. Ванная комната |
![]() |
| Ремонт двухуровневого апартамента 22м2. Ванная комната |
![]() |
| Ремонт двухуровневого апартамента 22м2. Ванная комната |
![]() |
| Ремонт двухуровневого апартамента 22м2. Ванная комната |
![]() |
| Ремонт двухуровневого апартамента 22м2. Вид на винтовую лестницу |
![]() |
| Ремонт двухуровневого апартамента 22м2. Металлическая лестница |
По всем стенам (кроме наружней) и потолку везде сделана звукоизоляция. Апартамент маленький, выбирали самый тонкий вариант - Ruspanel ~2,5см для стен. А на потолке между балками закрепили обычную ватную шумоизоляцию. Итого: вечеринки у соседей не слышно! (У них ни у кого звукоизоляции нет).
Наружная стена была старая, с металлическими укреплениями, самая неоднородная и сложная. Не понятно было, как с ней стыковать кухню, поэтому решили зашить ее нижнюю часть гипсокартоном, а верхний дореволюционный кирпич оставить на виду и просто покрасить. Это часть истории (как и балки на потолке) и хорошо, когда ее видно.
БАЛКОН:
- Он создает уют на кухне
- Он является потолком, на который крепится подсветка кухни
- На нем стоит стеллаж с кучей вещей
- На нем висит велосипед
- По нему удобно ходить в угол и обслуживать кондиционер, рекуператор и карниз шторы
- Он добавляет еще один очень необычный вид на апарт
- К нему крепится экран для проектора
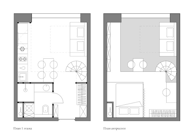
АНТРЕСОЛЬ:
Хорошей идеей было пройтись по соседям, посмотреть решения. Самое ценное что я переняла - поднятие потолка над ванной как подиум для кровати. По есть потолок ванной получается более высоким, с лучшей циркуляцией воздуха, и это поднятие одновременно является полом 2го этажа под матрасом.
Я первый раз в этом проекте делала антресоль. Сначала делается металлический каркас, а потом на него кладут 20мм фанеры (в один лист 20 или два листа по 10мм), и можно ходить. Для антресоли обязательно нужно сделать расчет. Стойки не всегда крепятся к полу, иногда - к стенам, а на пол могут вообще не опираться.
- Высота потолка в черновом виде оказалась 420см до между балок, а до балок 380см. Это маловато для того, чтобы сделать антресоль, на которой можно комфортно стоять. Под балками уже не хватает, а между балками мы положили звукоизоляцию + пол поднимается на высоту стяжки и конвектора. Итого на антресоли остается высота в чистовом виде 180см до междубалок и 165см до балок. На пол антресоли положили кварцвинил, потому что он всего 3мм толщиной, чтобы максимально не красть высоту.
- Антресоль снизу не зашивали, а наклеили на фанеру ламинат между балок. Это создает ощущение уюта и "сложности", и получается больше высоты.
- Так как у нас получился второй уровень, обязательно нужно было сделать проходные выключатели. Верхний свет яркий (шины) и свет над столом (ретро-лампочки) выключаются в двух местах: у стола на 1м урове и у кровати на 2м уровне.
КОНВЕКТОР:
Конвектор сделали внутрипольный. Нужно было взять его максимально плоским и не оказаться выше двери, потому что дверь открывается внутрь апарта. Конвектор взяли длиной во все окно, я купила к нему доп. 4 вентилятора и терморегулятор. Но строители не справились с установкой вентиляторов и регулятора, и просто их проигнорировали) И хорошо! Потому что конвектор отлично греет без них. А самая большая претензия к вентиляторам - что они громкие и разносят пыль которая скапливается в конвекторе - не актуальна. Пыль скапливается и спокойненько там лежит, пока ее не пропылесосишь) Это очень просто, решетка снимается на 2 секунды.
Кухня длинная линейная (не угловая). Холодильник маленький, икеевский, но с морозилкой. На 2-х человек влезают все продукты на неделю, но без кастрюль.
Под мойкой я организовала хранение вторсырья, хозяйственный выдвижной ящик, маленькую корзину для мусора и фильтр для питьевой воды с обратным осмосом. Вторсырье вывозят раз в 2 недели, две емкости из Икеи * 42л хватает. Пришла к выводу, что самая эффективная по объему система - скидывать в емкости все подряд, а сортировать непосредственно перед вывозом.
![]() |
| Организация пространства под мойкой в кухне. Хранение вторсырья |
![]() |
| Организация пространства под мойкой в кухне. Хранение вторсырья |
ГОСТИНАЯ:
- Внизу раскладной диван двуспальный (спальное место140х195см) от Диван ру. Специально купили такой, чтобы был с подлокотниками. Также классный механизм раскладывания, на нем часто остаются гости.
- Над диваном полка, на ней стоит переносной маленький проектор, а на балконе висит рулонный экран для него. С ним гостиная превращается в кинотеатр. Размер экрана (220см) выбирали под размер луча проектора.
- Стол сделали барной высоты, 63х120см. За ним удобно стоять, когда приходит много гостей. Все не могут поместиться за ним на стульях (в апартаменте всего 4 складных стула), а стоя может поместиться гораздо больше гостей.
- Чтобы добавить естественный свет в ванной, под потолком и в торце подиума кровати сделала стеклоблоки. Через них и через стеклянные части двери днем попадает свет. А ночью через них видно, если забыли выключить свет в ванной, они светятся под кроватью.
- Хотела сделать нишу для колонны стиралка+сушка, но выше стиралки получился ревизионный люк доступа к трубам, поэтому выше машинки сделали стеллаж с переставляемыми полками. Для доступа к люку достаточно пары минут. А стиральную машинку взяли с функцией сушки, почти полноразмерную.
- Ниша для стиральной машинки 80см, поэтому рядом с ней слева за шторкой помещаются длинные вещи - сноуборды и лыжи. Раковина с одним ящиком и нижним открытым хранением также оказалась очень удобным решением.
- Большой душ (100х90см) отделили шторкой, а не стеклянной перегородкой. За шторкой гораздо проще ухаживать (постирал и все), и она бюджетнее. В перегородке между душем и стиралкой сделана ниша для шампуней (удобно и аккуратно).
ПРИХОЖАЯ:
По плану апартамента повезло, и получилась хорошая широкая прихожая. Так как дверь от застройщика открывается внутрь, важно чтобы было место, куда отойти перед тем, как ее закрыть. В прихожей поместился глубокий шкаф для вещей высотой 200см (из 2х секций 50см и 75см) + открытая часть 65см для того, чтобы сесть, поставить сумки и повесить вещи на крючки или плечики. Там же в стене за вещами электрощиток и слаботочный щиток. К ним удобный прямой доступ. Справа от двери высокая галошница и доска для записей. Всего этого хватает для хранения вещей для 2х человек.
Входную дверь изнутри обклеивали оракалом красного цвета - это оказался самый дешевый вариант того, как панель "орех" от застройщика превратить в красную дверь. Второй вариант был - покраска. У многих соседей такое решение, и это тоже ок.
СПАЛЬНОЕ МЕСТО И ИЗГОЛОВЬЕ
- Матрас 160х200 лежит на подиуме, который является потолком ванной. Под кроватью нет хранения, но зато в ванной удобная вентиляция и хранение длинных вещей.
- За кроватью были водяные трубы и трубы пожаротушения, которые застройщик сделал под потолком, но сильно торчащими из стены. Это такое колено, где труба из коридора втыкалась в стояк внутри апартамента (не спрашивайте, почему они так спроектировали). И только когда я уже положила матрас до меня дошло, что эти жутко торчащие трубы можно переварить!
- После переварки они выступали из стен на 8см. Чтобы их скрыть, мы с коллегой Викторией Малышевой разработали модель изголовья. К стене должна была крепиться обрешетка (для утолщения), а к ней мягкие панели. У каждой панели свой уникальный размер, потому что потолок с балками, и панели должны были с ними красиво соединяться. Панели крепились на липучки к обрешетке, а внутри натянут поролон на фанерных листах.
![]() |
| Переварка труб в изголовье кровати и организация мягкого изголовья |
![]() |
| Организация конструкции мягкого изголовья |
![]() |
| Организация конструкции мягкого изголовья |
В двухуровневых небольших апартаментах есть большая проблема: душно и жарко на 2м этаже.
- рекуператор (он дает приток свежего воздуха с улицы)
- кондиционер
- мойку воздуха под лестницей, которая чистит воздух и дует снизу вверх
- иногда вентилятор
все это вместе дало хороший эффект)
![]() |
| Установка рекуператора для притока свежего воздуха |
![]() |
| Установка рекуператора для притока свежего воздуха |
- Из-за большой высота потолка отлично помещается елка на Новый год высотой 3,5 метра
- По верхним поручням и над окном классно крепить гирлянды
- Из окна видно мало зелени, поэтому за окном и перед окном я постаралась повесить и поставить максимальное количество растений.
- Для быстрой уборки очень выручает вертикальный беспроводной пылесос Дайсон. Он прячется за шторой за диваном у бра. Его удобно быстро доставать и ставить на зарядку. Для второго этажа беспроводной и легкий пылесос самый удобный.
![]() |
| Декор и досуг |
![]() |
| Звезда апартамента - кот |
![]() |
| Фото апартамента до ремонта |
![]() |
| Фото апартамента до ремонта |
![]() |
| Фото апартамента до ремонта. Антресоль |
![]() |
| Фото апартамента до ремонта. Конвектор |
![]() |
| Фото апартамента до ремонта. Установка кухни |
![]() |
| Фото апартамента до ремонта. Установка кухни |
![]() |
| Фото апартамента до ремонта. Первая уборка |
![]() |
| Фото апартамента до ремонта. Стеклоблоки в ногах кровати для света в ванную |
![]() |
| Фото апартамента до ремонта. Подшивка антресоли ламинатом |
![]() |
| Фото апартамента до ремонта. Оклейка входной двери оракалом |
![]() |
| Фото апартамента до ремонта. Ступени для винтовой лесницы |
Яркие черные грубые швы у плитки подходят к черной антресоли и двери. Много металла, много дерева, неидеальные детали.
![]() |
| Эскизы к проекту |
![]() |
| Эскизы к проекту |
![]() |
| Эскизы к проекту |
![]() |
| Эскизы к проекту |
![]() |
| Эскизы к проекту |
![]() |
| Эскизы к проекту. Выбор яркого акцента в ванной |
Плитка зеленая ванная: Artisan Moss Green 6.5x20 Equipe (~3600р/м2)
Мозаика напольная: NSmosaic PS2356-06 295*295 (~3200р./м2)
Краска белая и темно-серая: Husky
Кухня и мебель: Икеа
Диван: Divan.ru (модель Динс Мини 162см Эвита Grey раскладной)
(скидка 5% по промокоду LEKSINA)
Cтол: столешница Икеа + сварное подстолье
Светильники: Леруа, Авито
ДЕТАЛЬНЫЙ БЮДЖЕТ:
Работы строителей 320 000р.
Черновые материалы: 260 000р.
Переварка труб и пожарки 35 000р.
Проект антресоли 15 000р.
Лестница 245 000р.
Шумоизоляция (Ruspanel) 100 000р.
Конвектор напольный 66 000р.
Плитка, затирка, стеклоблоки 62 000р.
Инсталляция, трап, полотенцесушитель 55 000р.
Краска 8500р.
Ламинаты и кварцвинил 52 000р.
Шины, бра, споты 38500р.
Дверь с установкой 24 000р.
Кухня и мебель ИКЕА 283 000р.
Диван 37 000р.
Подстолье 6500р.
Изголовье (проект, материалы, работа) 30 000р.
Оклейка двери 4000р.
Ступени 24 000р.
Стиральная машинка 45 000р.
Рекуператор (с монтажом) 27 000р.
Кондиционер (с монтажом) 35 000р.
Питьевой фильтр (Аквафор) 8900р.
Замена замка входной двери 4500р.
Мелочи 35 000р.
Экран для проектора - 10 000р.
Уборка 8 000р.
_________________
ИТОГО: 1 838 900т.р.
________________________
.jpg)
.jpg)
.jpg)
.jpg)
.jpg)
.jpg)
.jpg)
.jpg)
.jpg)
.jpg)
.jpg)
.jpg)
.jpg)
.jpg)
.jpg)
.jpg)
.jpg)
.jpg)
.jpg)
.jpg)
.jpg)
.jpg)
.jpg)
.jpg)
.jpg)
.jpg)
.jpg)
.jpg)
.jpg)
.jpg)
.jpg)
.jpg)
.jpg)
.jpg)
.jpg)
.jpg)
.jpg)
.jpg)
.jpg)
.jpg)
.jpg)
.jpg)
.jpg)
.jpg)
.jpg)
.jpg)
.jpg)
.jpg)
.jpg)
.jpg)
.jpg)
.jpg)
.jpg)
.jpg)
.jpg)
.jpg)
.jpg)
.jpg)
.jpg)
Этот комментарий был удален автором.
ОтветитьУдалитьЯ восхищен этим апартаментом с винтовой лестницей в дореволюционной фабрике. Это не просто жилье, а произведение искусства. Винтовая лестница выглядит как изящная скульптура, которая соединяет два уровня пространства. Дореволюционная фабрика придает апартаменту особый характер и настроение. Я люблю, как автор сохранил некоторые элементы промышленного стиля, например, кирпичные стены, металлические балки и большие окна. Он также добавил современные и комфортные детали, такие как кожаный диван, камин и барный табурет например такие https://home24.ru/catalog/chairs/taburety/. Это идеальное сочетание старого и нового, классического и модного. Я бы с удовольствием пожил в таком апартаменте или хотя бы посетил его как турист.
ОтветитьУдалить